Возле участка, где планируется построить крематорий, сразу за лесом в 200 метрах, находится микрорайон Иманта. И многие жители этого микрорайона совсем не рады такому соседству. Инициатором локального плана является «Рижская похоронная служба», заказчиком - ABSocial. Разработчиком плана выступает Metrum, а экологический отчет подготовлен компанией «55М».
По замыслу застройщика, рядом с кладбищем Лачупе планируется создать частное кладбище. «Рижская похоронная служба» предложила изменения в локальном плане для участка по адресу Балтеглю, 30, и в июне Рижская дума приняла решение передать локальный план на общественное обсуждение и получение заключений соответствующих органов.
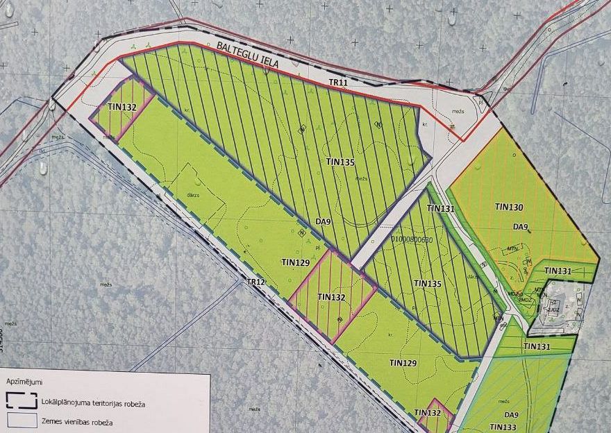
Общая площадь территории локального плана составляет примерно 7,9 гектаров. Участок расположен на юго-западе района Клейсты, между кладбищем Лачупе на севере и районом Иманта-3 на юге.
На юго-западной части участка, где уровень грунтовых вод самый высокий, допускается только создание алеек памяти и колумбария; традиционные захоронения здесь не разрешены. В отдельных частях участка возможны строительство крематория и морга.
Как сообщалось, рижане и особенно жители микрорайона провели акции и сбор подписей против строительства крематория в жилом районе, в том числе подписи активно собирались 30 декабря 2025 года и 10 января 2026 года. Собранное количество подписей - более 3000 - признано достаточным для подачи официального коллективного заявления в Рижскую думу.











